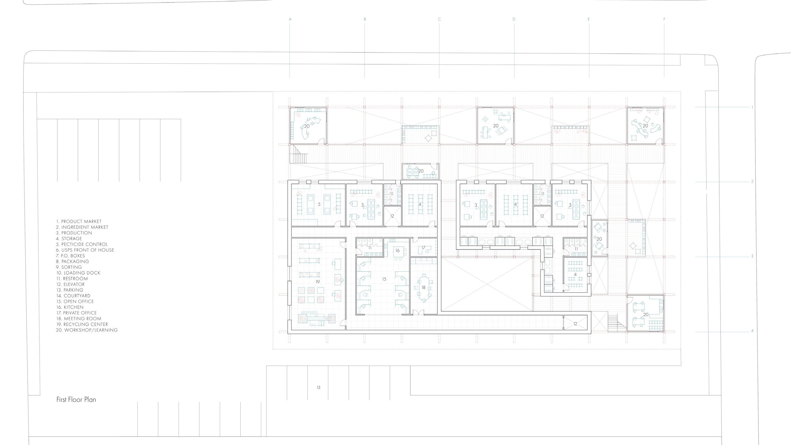
Bioregional Market

ARCH 432 (UG3) 39

Bioregional Market
Malak Atwi
Jacob Comerci

The USPS’s current work is largely involved with package delivery, especially with the decline of paper mail. But with its network and infrastructure, the USPS has the potential to be more than just a passive handler of products.

This project proposes that the USPS take on a more active role in commerce by connecting suppliers, makers, and consumers, by being involved in the production and distribution of goods.

Today, advancements in service focus on convenience and remove social interaction, thus increasing social isolation. This project addresses this issue through a sensory-rich Bioregional Market to reintroduce meaningful interactions within the physical space.