Bachelor of Science in Architecture

Architecture  Architecture 

The Bachelor of Science in Architecture at Taubman College is one of the nation’s leading undergraduate design programs, combining a rigorous and collaborative studio culture with cutting-edge technology and global perspectives. Here, you will learn from celebrated practitioners and dedicated educators who foster critical thinking, collaboration, and architectural experimentation. Through hands-on experience, you will engage deeply with innovative, sustainable design approaches aimed at the equitable transformation of the built environment. Graduating with a strong foundation in design thinking and technical skills, you will be prepared for advanced study or impactful careers that shape the future of architecture.

Junior + Senior Studios
The Architects as a Humanitarian

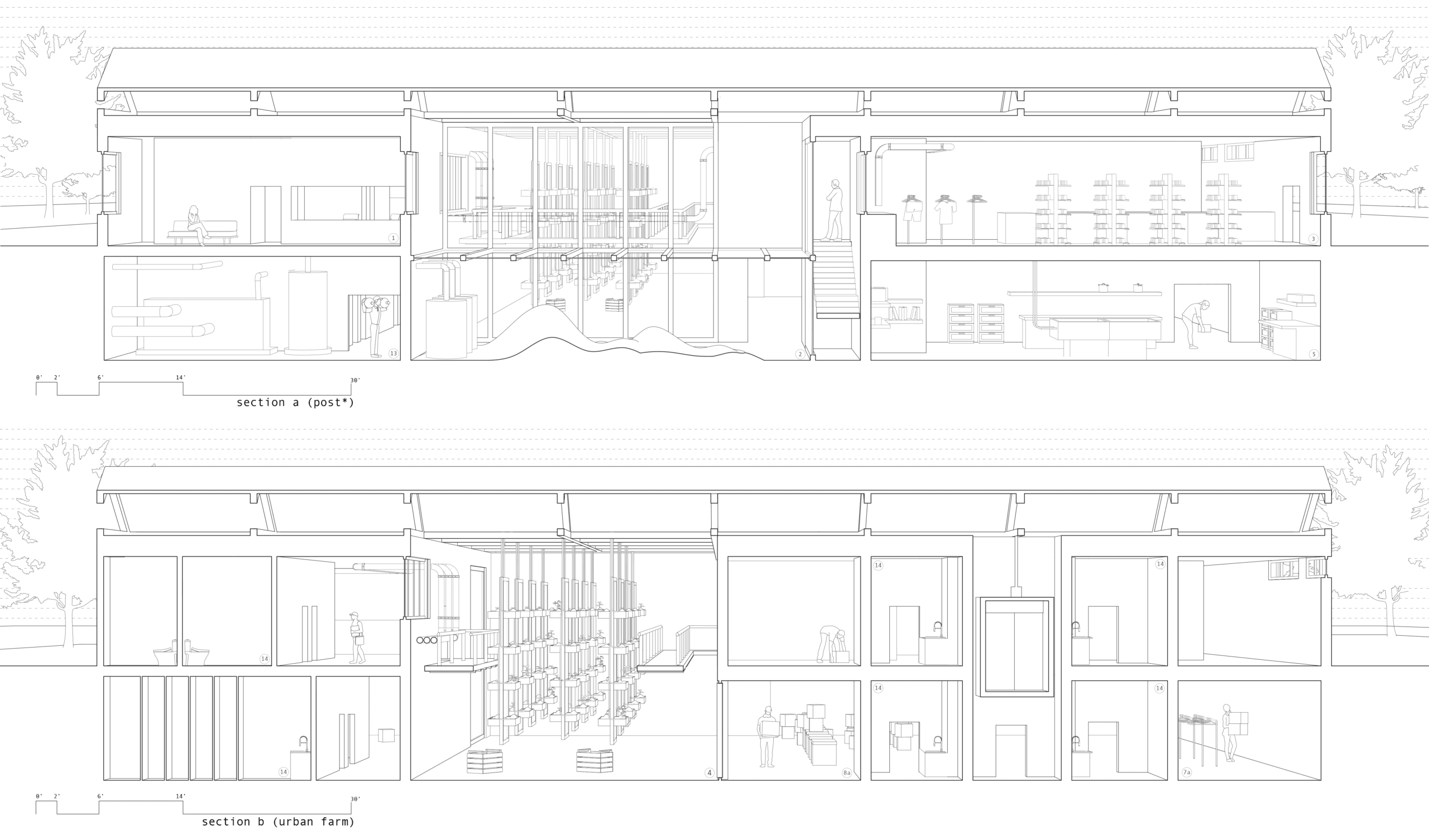
The final design studio in the undergraduate studio sequence, the Wallenberg Studio, honors the legacy of Taubman College alumnus Raoul Wallenberg, credited with single-handedly rescuing over 100,000 Jews from Nazi persecution in Budapest, Hungary, during World War II. Guided by an overall studio theme that changes annually and focuses on a broad humanitarian concern, each studio section explores architecture’s relationship to the humanitarian, asking how the discipline of architecture can contribute directly to global issues.

Freshman and Sophomore Studios
A Modular Curriculum

During the first two years of the program, a menu of flexible modules offers people of various backgrounds and interests an entry point into the field.

During the first two years of the program, a menu of flexible modules offers people of various backgrounds and interests an entry point into the field.

During the first two years of the program, a menu of flexible modules offers people of various backgrounds and interests an entry point into the field.

Explore Innovative Student Work

Career

Career and Professional Development

We are one of the few architecture programs in the nation that offers a dedicated full-time career and professional development team. Through various programs and resources to help our students explore careers, secure positions, and continue skill development and management, Taubman architecture graduates enter their careers prepared to create a better, more just, and more beautiful built environment.

Community and Connections

You will be well-supported by a large and inclusive community of students, faculty, and staff who are knowledgeable, curious, collegial, and just as excited about architecture as you are. They bring a variety of experiences and points of view. They will be your sounding board, your support network, and your friends.

Student Profile
Student Profile
Alumni Profile
Student Profile

Publications and Media

Student Publication

Dimensions is the student-produced journal of architecture at the University of Michigan, published annually since 1987.

It seeks to contribute to the critical discourse of architectural education by documenting the most compelling work produced by its students, faculty, fellows, and visiting lecturers.

Publication

Our online academic journal for current conversations in architecture and urbanism at Taubman College and beyond.