UG1 Studio

ARCH 312 (UG1) 59

UG1 Studio
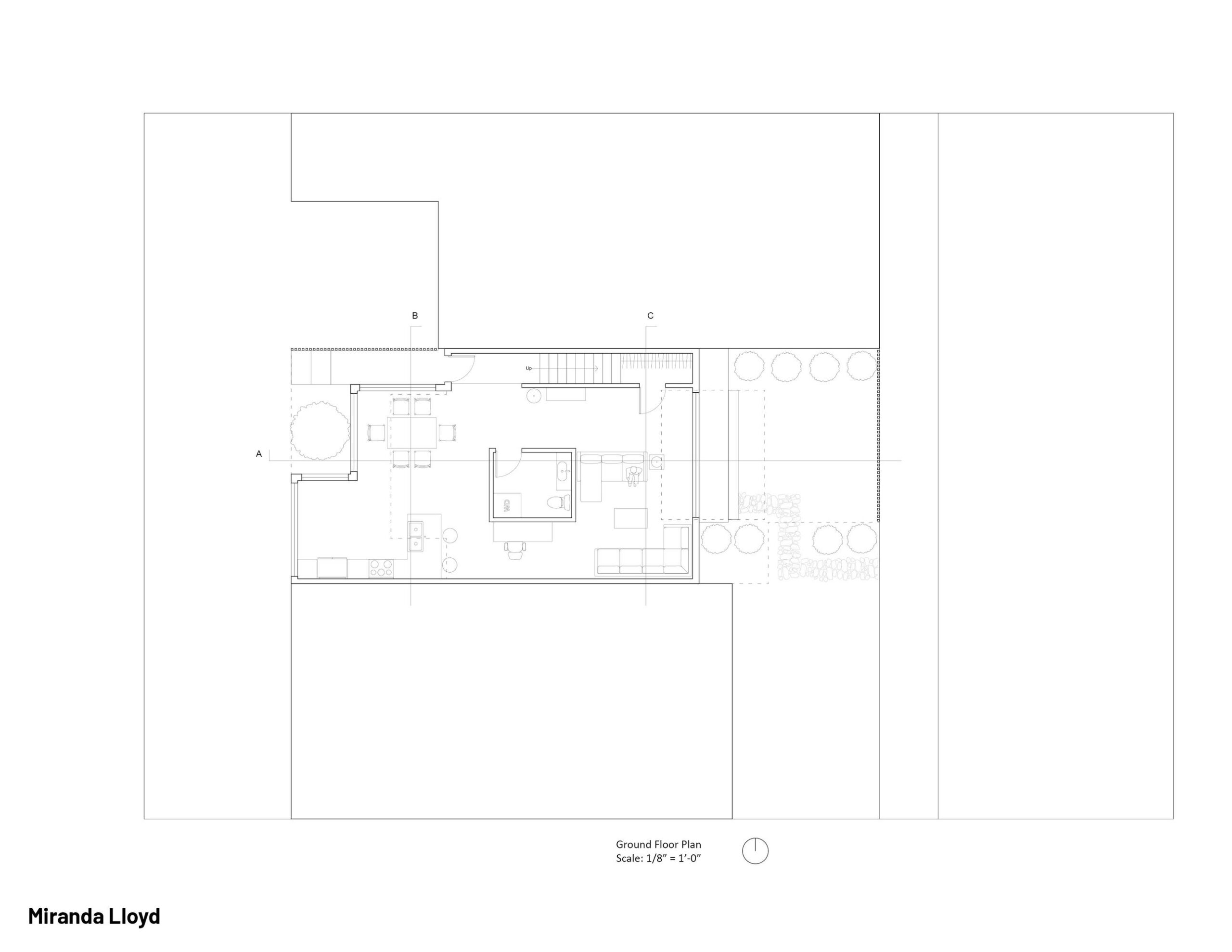
Miranda Lloyd
Anca Trandafirescu

This year’s UG1 studios were assigned the following eight house precedents to study:

Casa Poli (Pezo von Ellrichshausen)
Fisher House (Louis Kahn)
Floating House (MOS)
House in Sakuradai (Go Hasewaga)
House N (Sou Fujimoto)
Peninsula House (Sean Godsell Architects)
S. House (SAANA)
Tanikawa House (Kazuo Shinohara)

Each student produced three analytical design projects to examine their precedent critically. Armed with this understanding, the fourth and final project, seen in this year’s show, was a redesign of the original house imagined in a North American contemporary context. Though the studio’s attitude toward historical precedent was not one of direct quotation, the redesigned project is intended to be in a knowing and creative dialogue with its predecessor, and therefore, with the many predecessors before that. Ultimately, the studio posits that relevant architectural invention, and newness itself, is intrinsically tied to history.

“...that great poem, which all poets, like the cooperating thoughts of one great mind, have built up since the beginning of the world.”

- Percy Bysshe Shelley