On Broadway

ARCH 552 Institutions 63

On Broadway
Anna W. Peterson
Ana Morcillo Pallarés

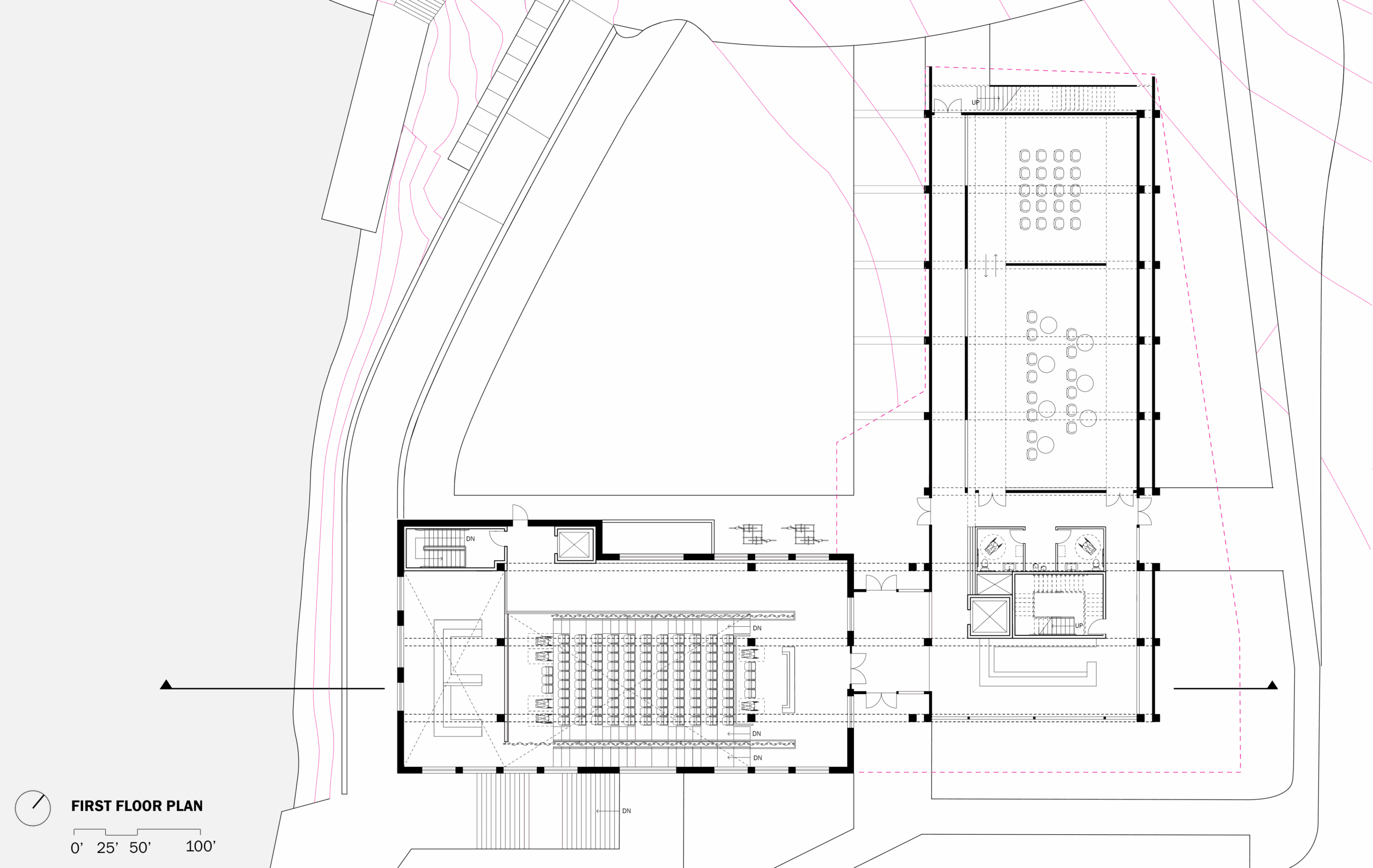
Situated on a post-industrial site along the Huron River, the historic Argo Substation has been carefully transformed as an adaptive reuse project to function as Ann Arbor’s newest neighborhood cinema. Inspired by the substation’s heavy brick facade, I aim to explore the relationship between the existing stereotomic structure and the addition of a new, lighter tectonic framework. Ann Arbor has two notable fixed-seating cinemas, the Michigan Theater and the State Theater. With the evolving media trends of today, the On Broadway theater offers flexible seating to accommodate various viewing types, such as immersive screenings and dynamic event spaces.